Swimming pool DWG file with plan, section, and elevation details
Description
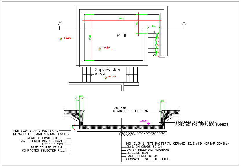
Swimming pool design including plan, section, and elevation views. Architects, engineers, and interior designers can utilize this DWG file for precise planning, layout visualization, and structural detailing. The AutoCAD file includes dimensions, water flow sections, poolside features, and surrounding area details, ensuring accurate integration into residential, commercial, or recreational projects for functional and aesthetic design.

Uploaded by:
Fernando
Zapata

