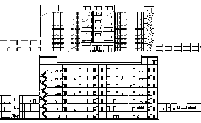
Hospital with 260 bed main elevation and section view dwg file
Description
Hospital with 260 bed main elevation and section view dwg file.
Hospital with 260 bed main elevation and section view that includes front elevation, main section with doors and window details, staircase view, roof and terrace view, floor view, human blocks, waiting area, tree view and much more of hospital design.
Uploaded by:

