Structural detail dwg file
Description
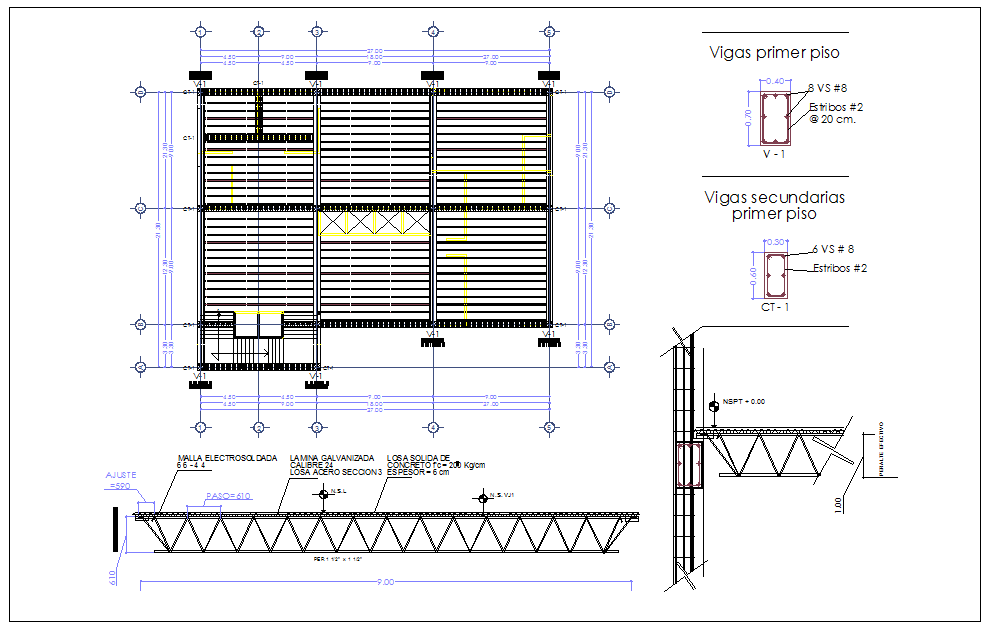
Structural detail dwg file, steel structure detail information and dimension detail information, plan area of structure, steel structure, section view detail of structure, beam and column reinforcement detail , steel bars dimensions detail information

Uploaded by:
Fernando
Zapata

