LOGIN
HOME
CATEGORIES
UPLOAD FILE
PRICING
HOUSE PLAN
ABOUT US
CONTACT US
Office room plan detail dwg file
Home
Categories
Architecture
Corporate Building
Office room plan detail dwg file
Uploaded by:
Fernando
Zapata
View Profile
View Profile
Description
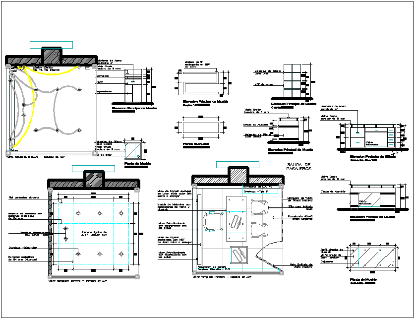
Office room plan detail dwg file, office room plan layout detail and plan design with electrical layout detail, furniture detail
File Type:
DWG
File Size:
141 KB
Category::
Architecture
Sub Category::
Corporate Building
type:
Gold
Uploaded by:
Fernando
Zapata
View Profile
Download
Add to libary
find Latest
Related
Files