LOGIN
HOME
CATEGORIES
UPLOAD FILE
PRICING
HOUSE PLAN
ABOUT US
CONTACT US
Furniture Table Layout DWG File for Interior Designers
Home
Categories
Furniture
Table And Chair
Furniture Table Layout DWG File for Interior Designers
Uploaded by:
Komal
View Profile
View Profile
Description
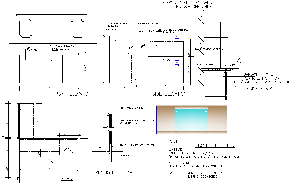
Furniture Table plan dwg file find here layout plan, section plan, and elevation design with much more detailing in autocad format.
File Type:
DWG
File Size:
80 KB
Category::
Furniture
Sub Category::
Table And Chair
type:
Free
Uploaded by:
Komal
View Profile
Download
Add to libary
find Latest
Related
Files