Stair elevation and side elevation detail dwg file
Description
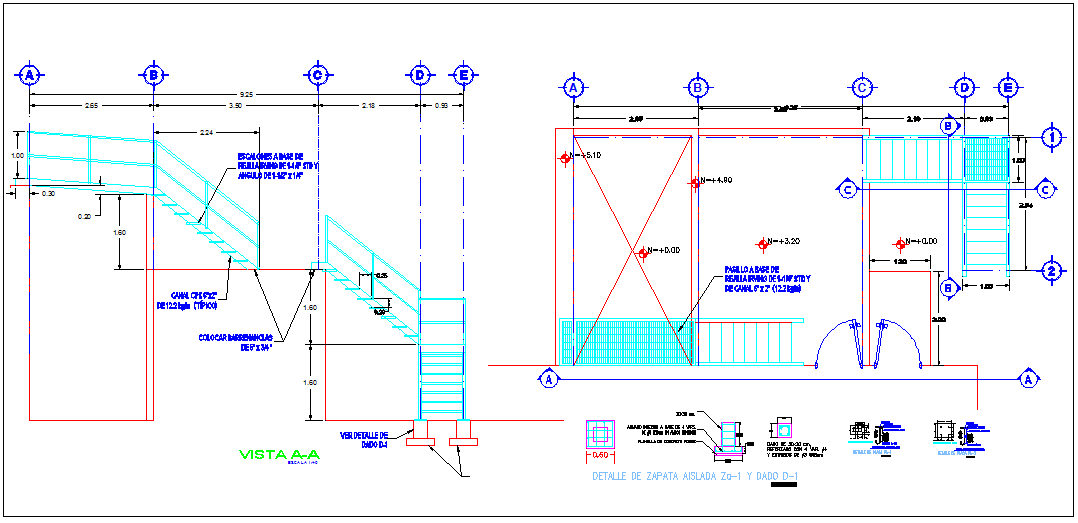
Stair elevation and side elevation detail dwg file, Stair elevation and side elevation view & section vie detail information, stair plan and design plan layout view stair hand railing, columns and strut section view detail
Uploaded by:

