Residential house plan of bedroom plan view detail information dwg file
Description
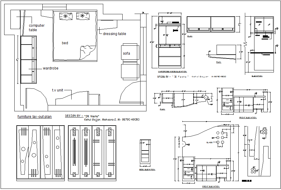
Residential house plan of bedroom plan view detail information dwg file, Residential house plan of bedroom plan view detail information with furniture layout and elevation view, computer table, sofa, bed, dressing table etc
Uploaded by:

