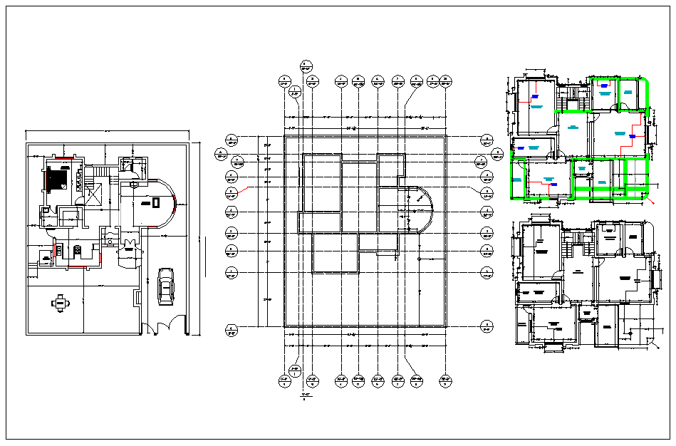
Residential house plan and design plan of layout details view dwg file
Description
Residential house plan and design plan of layout details view dwg file, Residential house plan and design plan of layout details view with center line plan, planing for bed room, kitchen, main hall, parking area, wash room, garden etc, with dimension details.
Uploaded by:

