Residential kitchen plan view and elevation view dwg file

Residential kitchen plan view and elevation view dwg file
Profile

Uploaded by:

Dhara

Description
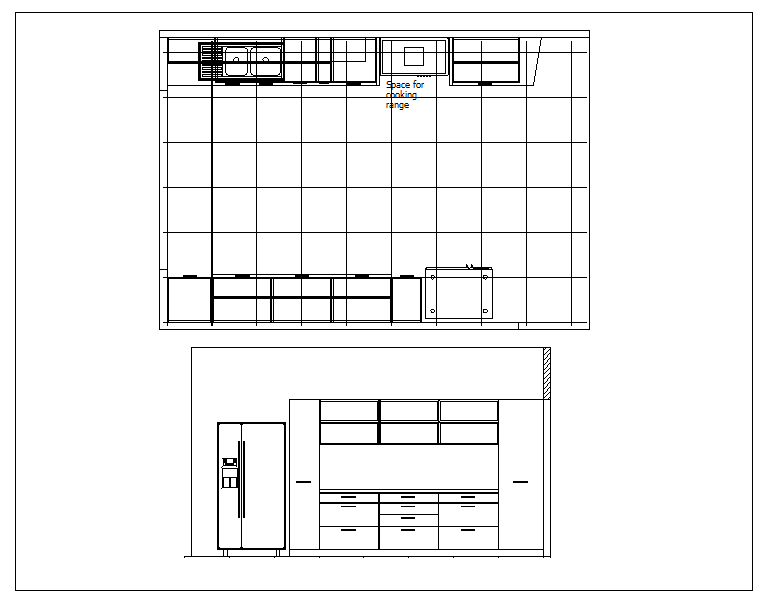
Residential kitchen plan view and elevation view dwg file, Residential kitchen plan view and elevation view with furniture elevation,chimney view, platform view
Profile

Uploaded by:

Dhara

find Latest

Related Files