Wall section plan view detail dwg files
Description
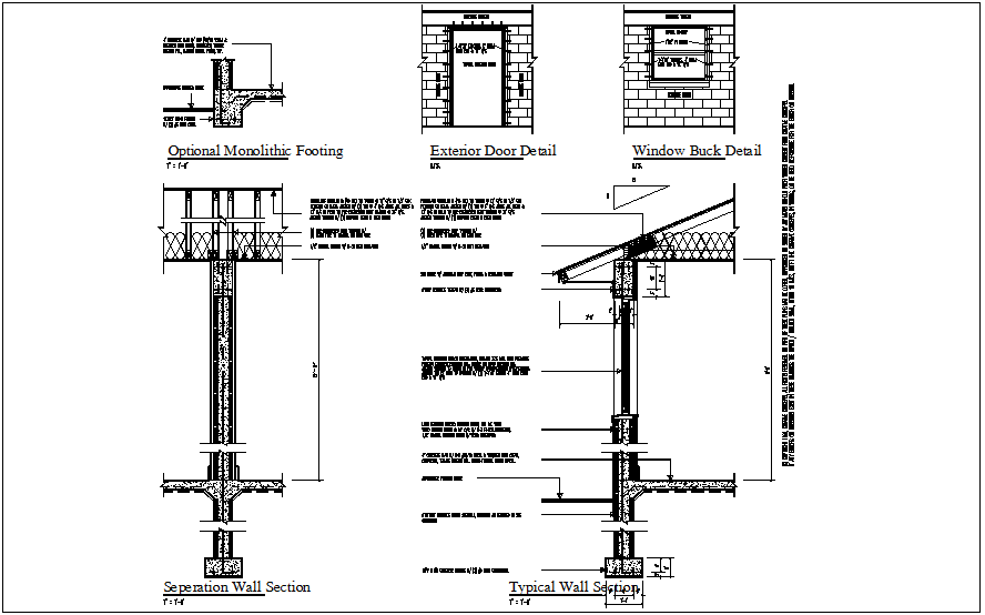
Wall section plan view detail dwg files, Wall section plan view detail with dimension, side section, and typical wall section plan details naming with dimension, separation wall section plan detail dimension with naming, optical monolithic footing detail naming with dimension, exterior door detail, window Buck detail
File Type:
DWG
File Size:
171 KB
Category::
Structure
Sub Category::
Section Plan CAD Blocks & DWG Drawing Models
type:
Gold
Uploaded by:

