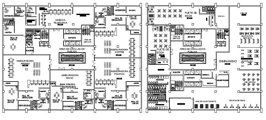
Finance center architecture layout plan details dwg file
Description
Finance center architecture layout plan details dwg file.
Finance center architecture layout plan details that includes a detailed view of main entry door, security desk, inquiry desk, waiting area, sitting area, employee offices, head offices, kitchen, toilets, meeting room, conference room, dining area, specific departments and much more of finance center layout plan.
Uploaded by:

