LOGIN
HOME
CATEGORIES
UPLOAD FILE
PRICING
HOUSE PLAN
ABOUT US
CONTACT US
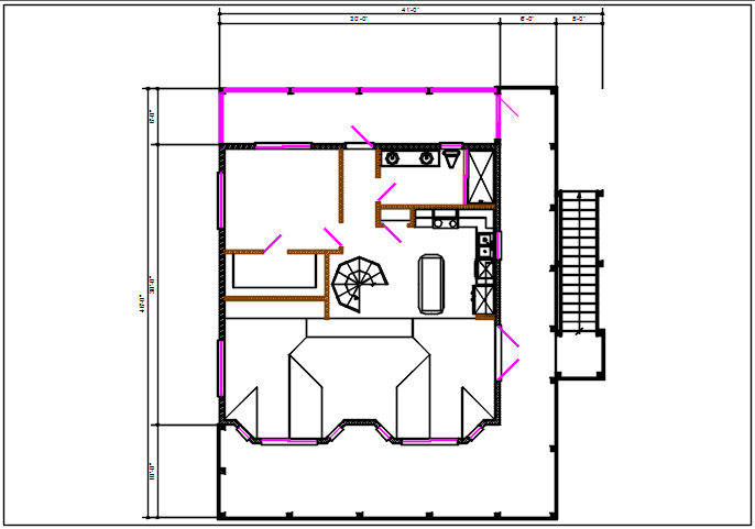
Layout plan detail dwg file
Home
Categories
Architecture
House Plan
Layout plan detail dwg file
Uploaded by:
Dhara
View Profile
View Profile
Description
Layout plan detail dwg file, Layout plan detail with dimension details, layout naming plan, furnisher detail, door, window, double door, toilet detail, etc.
File Type:
DWG
File Size:
191 KB
Category::
Architecture
Sub Category::
House Plan
type:
Free
Uploaded by:
Dhara
View Profile
Download
Add to libary
find Latest
Related
Files