Residential house plan detail with dimension, furnisher in room dwg file
Description
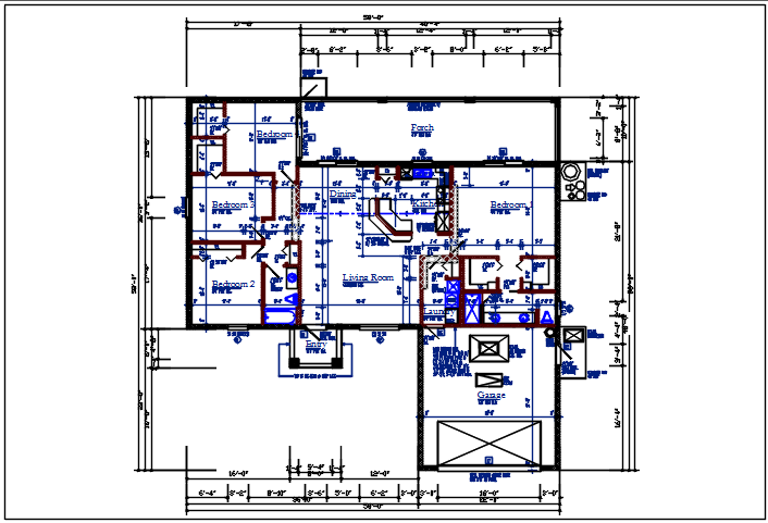
Residential house plan detail with dimension and furnisher in room detail dwg file, Residential house plan detail with dimension and furnisher in room detail, door, window, double door, toilet detail, kitchen, etc.
Uploaded by:
