LOGIN
HOME
CATEGORIES
UPLOAD FILE
PRICING
HOUSE PLAN
ABOUT US
CONTACT US
site plan detail dwg file
Home
Categories
Architecture
House Plan
site plan detail dwg file
Uploaded by:
Dhara
View Profile
View Profile
Description
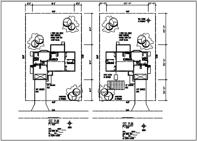
site plan detail dwg file, site plan detail house plan with dimension detail, cut out detail, etc.
File Type:
DWG
File Size:
56 KB
Category::
Architecture
Sub Category::
House Plan
type:
Gold
Uploaded by:
Dhara
View Profile
Download
Add to libary
find Latest
Related
Files