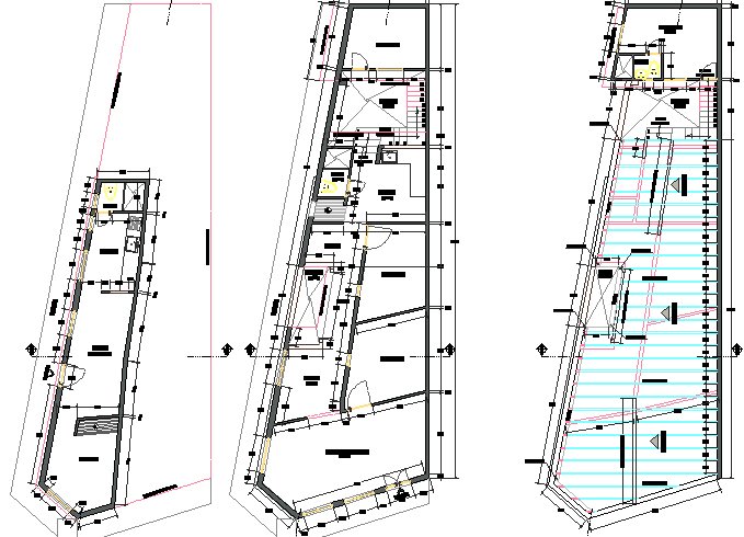
Ground floor, first floor and top floor layout plan
Description
Ground floor, first floor and top floor layout plan, layout plan of a office dwg file, here there is a top view layout plan of a office , modern design layout, sitting area,furniture detailing etc
Uploaded by:

