Ground, first & second floor layout plan, administration building dwg file
Description
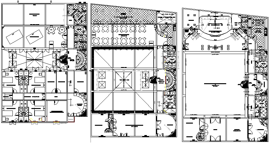
Ground, first and second floor layout plan of administration building dwg file.
Ground, first and second floor layout plan of administration building that includes a detailed view of ground floor, first floor, second floor, main entry door, reception area, waiting area, meeting room, conference room, employee offices, head offices, general hall, toilets, kitchen, cafeteria and much more of floor plan layout details.
Uploaded by:

