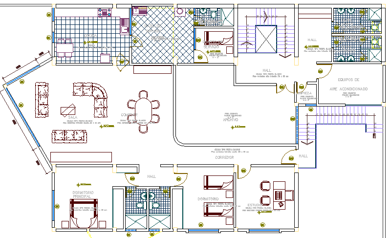
National bank architecture layout plan details dwg file
Description
National bank architecture layout plan details dwg file.
National bank architecture layout plan details that includes a detailed view of main entry gate, security desk, reception area, accountant desk, inquiry desk, sitting area, general hall, manager cabin, employee cabin, male toilet, female toilets, kitchen, dining area, meeting room and much more of bank layout plan details.
Uploaded by:

