High rise building elevation and section plan detail dwg file
Description
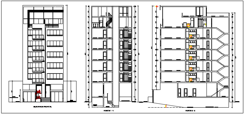
High rise building elevation and section plan detail dwg file, High rise building elevation and section plan detail with dimension detail, naming detail, front elevation detail, section A door and window cutting detail, section B stair cutting, etc.
Uploaded by:

