LOGIN
HOME
CATEGORIES
UPLOAD FILE
PRICING
HOUSE PLAN
ABOUT US
CONTACT US
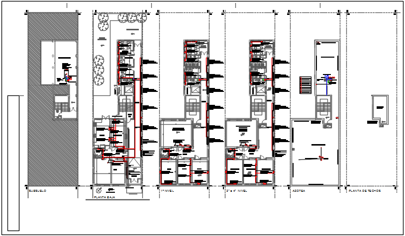
Commercial building plan detail dwg file
Home
Categories
Architecture
Corporate Building
Commercial building plan detail dwg file
Uploaded by:
Dhara
View Profile
View Profile
Description
Commercial building plan detail dwg file, Commercial building plan detail with dimension detail, naming detail, top to bottom plan detail, etc.
File Type:
DWG
File Size:
310 KB
Category::
Architecture
Sub Category::
Corporate Building
type:
Gold
Uploaded by:
Dhara
View Profile
Download
Add to libary
find Latest
Related
Files