LOGIN
HOME
CATEGORIES
UPLOAD FILE
PRICING
HOUSE PLAN
ABOUT US
CONTACT US
civil layout plan dwg file
Home
Categories
Details
Construction Details
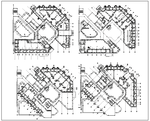
civil layout plan dwg file
Uploaded by:
Dipika
View Profile
View Profile
Description
Civil layout plan and ducting detail , this is a layout plan of a building, showing civil structure details, floor layout plan , etc
File Type:
DWG
File Size:
14.8 MB
Category::
Details
Sub Category::
Construction Details
type:
Free
Uploaded by:
Dipika
View Profile
Download
Add to libary
find Latest
Related
Files