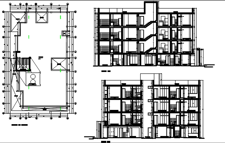
Plan elevation, section detail dwg file
Description
Plan elevation, section detail dwg file, Plan elevation, section detail detail with front elevation and rear elevation in dimension detail and naming detail, left elevation and right elevation detail window detail in the elevation 3” up detail, reeling detail, etc.
Uploaded by:

