Commercial office plan detail dwg file
Description
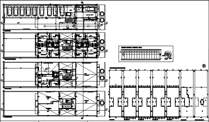
Commercial office plan detail dwg file, Commercial office plan detail in dimension detail, furniture detail in plan, chair, table, mitting room, employ room, main cabin, wetting room, electrical plan detail, elevation plan detail in dimension detail in center line plan detail, etc.
Uploaded by:
