Narrow House CAD DWG with Ground and First Floor Residential Layout
Description
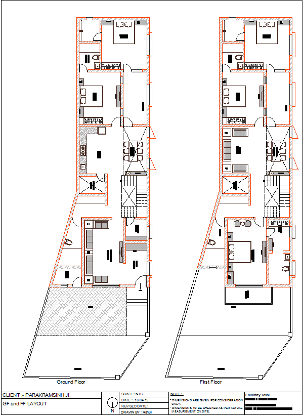
This AutoCAD-DWG file represents a detailed architectural plan of a narrow bungalow located in Ahmedabad, Gujarat. The house design covers a compact 21-foot span, efficiently planned to optimize limited space without compromising comfort. The ground floor layout includes a foyer, two bedrooms, a drawing room, a dining area, a kitchen with storage, and a wash area. The first floor plan features two bedrooms, one master bedroom with a balcony, a lounge area, and a general toilet. The layout emphasizes smooth spatial flow, natural lighting, and effective ventilation for modern urban living.
This drawing is ideal for architects, interior designers, and civil engineers looking for compact residential design inspiration. Each component is precisely dimensioned and layered for easy modification and presentation. The DWG file is compatible with AutoCAD, Revit, 3ds Max, and Google SketchUp, making it suitable for both 2D and 3D project visualization. Designed with functionality and aesthetic simplicity in mind, this narrow house plan demonstrates how thoughtful space planning can enhance livability within tight urban plots. Add this file to your CAD collection to explore efficient small-space residential design.

Uploaded by:
Chinmay
Joshi

