LOGIN
HOME
CATEGORIES
UPLOAD FILE
PRICING
HOUSE PLAN
ABOUT US
CONTACT US
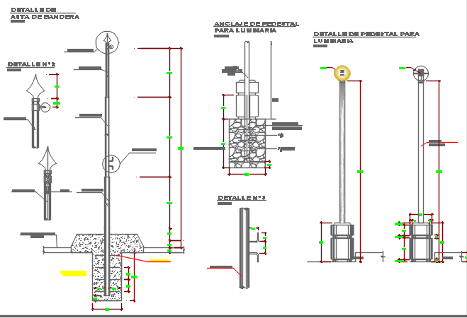
Street light detail dwg file
Home
Categories
Details
Construction Details
Street light detail dwg file
Uploaded by:
Dhara
View Profile
View Profile
Description
Street light detail dwg file, Street light detail with plan, elevation detail, dimension detail, naming detail, front elevation and lateral elevation detail, etc.
File Type:
DWG
File Size:
76 KB
Category::
Details
Sub Category::
Construction Details
type:
Gold
Uploaded by:
Dhara
View Profile
Download
Add to libary
find Latest
Related
Files