LOGIN
HOME
CATEGORIES
UPLOAD FILE
PRICING
HOUSE PLAN
ABOUT US
CONTACT US
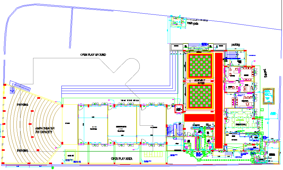
Architectural plan of a school dwg file
Home
Categories
Architecture
School & Hostel
Architectural plan of a school dwg file
Uploaded by:
Dipika
View Profile
View Profile
Description
Architectural plan of a school dwg file, here there is open ground, classroom detail, amphi theatre design
File Type:
DWG
File Size:
3 MB
Category::
Architecture
Sub Category::
School & Hostel
type:
Free
Uploaded by:
Dipika
View Profile
Download
Add to libary
find Latest
Related
Files