LOGIN
HOME
CATEGORIES
UPLOAD FILE
PRICING
HOUSE PLAN
ABOUT US
CONTACT US
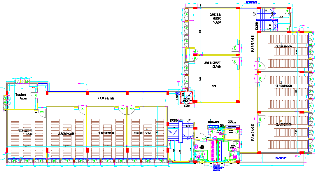
Classroom Architectural plan of a school dwg file
Home
Categories
Architecture
School & Hostel
Classroom Architectural plan of a school dwg file
Uploaded by:
Dipika
View Profile
View Profile
Description
Classroom Architectural plan of a school dwg file, here there is all classroom detail, furniture arrangement in auto cad format
File Type:
DWG
File Size:
3 MB
Category::
Architecture
Sub Category::
School & Hostel
type:
Gold
Uploaded by:
Dipika
View Profile
Download
Add to libary
find Latest
Related
Files