Construction detail dwg file
Description
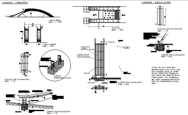
Construction detail dwg file, center line plan, foundation plan detail In naming detail and dimension detail, roof plan detail in naming an dimension detail , tree detail, beam detail in reinforcement detail in dimension detail and naming detail, reinforcement table detail, etc.
Uploaded by:
