Drill hook architecture details dwg file
Description
Drill hook architecture details dwg file
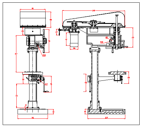
Drill hook architecture details that includes a detailed view of front view, left side view, cutting tool view, measures and much more of drill hook details.
File Type:
DWG
File Size:
347 KB
Category::
Mechanical and Machinery
Sub Category::
Other Cad Blocks
type:
Gold
Uploaded by:

