Single family house architecture layout plan details dwg file
Description
Single family house architecture layout plan details dwg file.
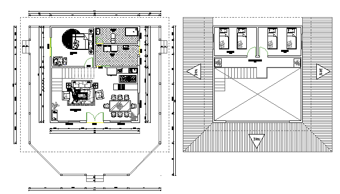
Single family house architecture layout plan details that includes a detailed view of house structure with main entry door, family hall, living room, indoor staircase, kitchen, dining area, toilets and bathroom, bedroom, master bedroom and much more of house layout plan details.
Uploaded by:

