Commercial plan and elevation detail dwg file

Commercial plan and elevation detail dwg file
Profile

Uploaded by:

Dhara

Description
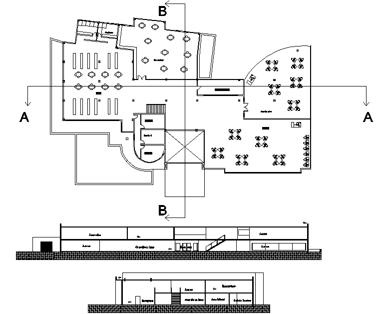
Commercial plan and elevation detail dwg file, Commercial plan with furniture detail, chair, table, section line detail, elevation detail with stair detail, hall detail, etc.
Profile

Uploaded by:

Dhara

find Latest

Related Files

WhatsApp Chat