Construction detail dwg file
Description
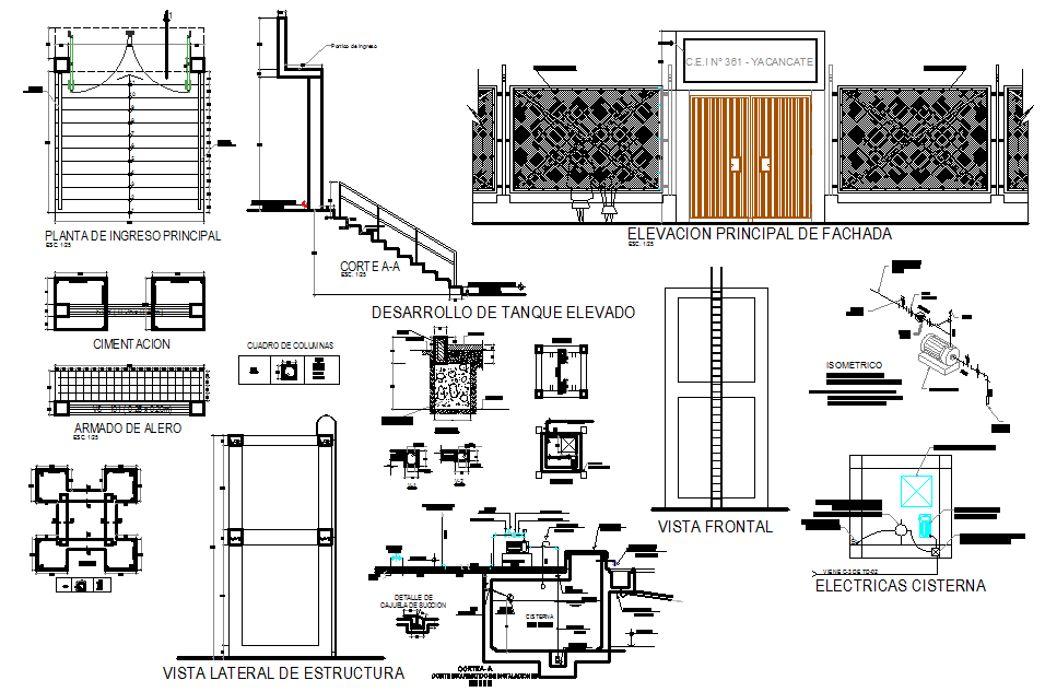
Construction detail dwg file, Construction detail stair plan and elevation detail In naming detail and dimension detail, door framing plan and elevation detail in naming an dimension detail , beam detail in reinforcement detail in dimension detail and naming detail, reinforcement table detail, etc.
Uploaded by:

