Electrical Wiring & Circuit Plan in AutoCAD DWG Drawing File
Description
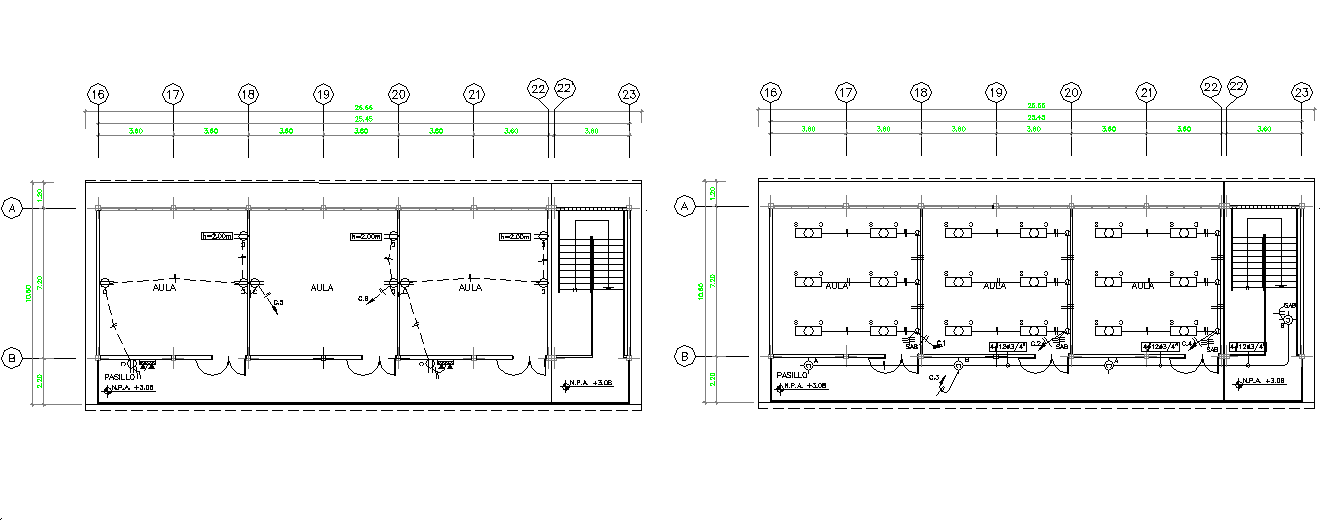
Electrical plan detail dwg file, Electrical plan detail with classroom celling detail, class room electrical plan detail, hidden line detail, etc.
File Type:
3d max
File Size:
3.9 MB
Category::
Electrical
Sub Category::
Architecture Electrical Plans
type:
Free
Uploaded by:

