Foundation plan, elevation and section detail dwg file
Description
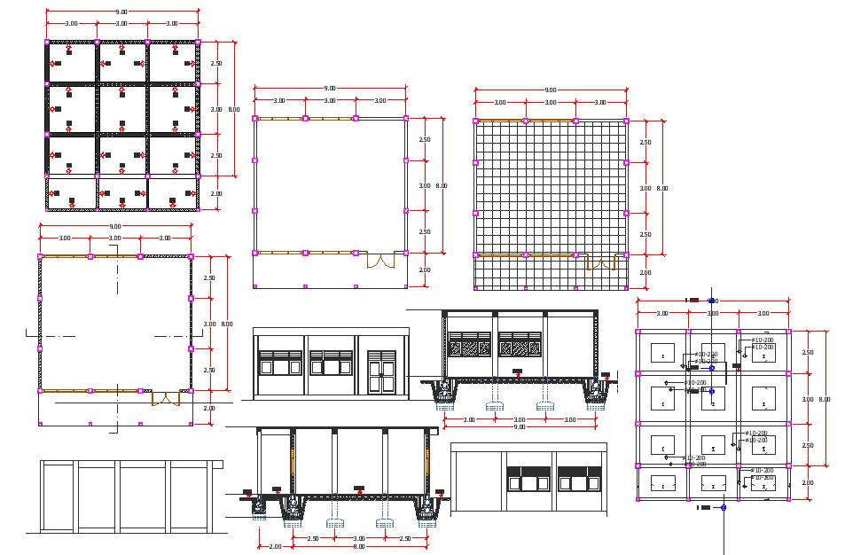
Foundation plan, elevation and section detail dwg file, Foundation plan, elevation and section detail with dimension detail, naming detail, reinforcement detail, furniture detail with door and window detail, etc.
Uploaded by:

