Section detail dwg file
Description
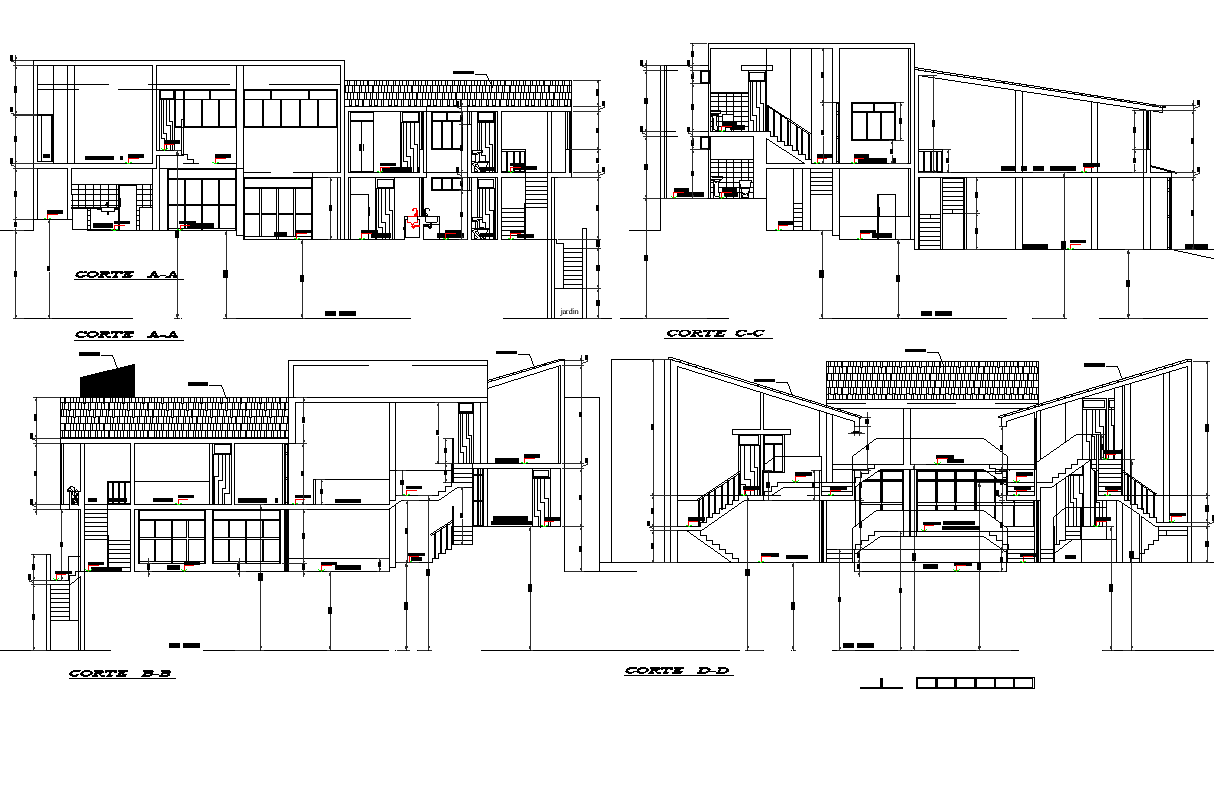
Section detail dwg file, Section detail with naming detail, dimension detail, section A-A’ detail siting table detail and bedroom detail, section B-B’ detail stair cutting detail, section C-C’ detail with door and window detail, front elevation detail and lateral elevation detail, etc.
Uploaded by:
