LOGIN
HOME
CATEGORIES
UPLOAD FILE
PRICING
HOUSE PLAN
ABOUT US
CONTACT US
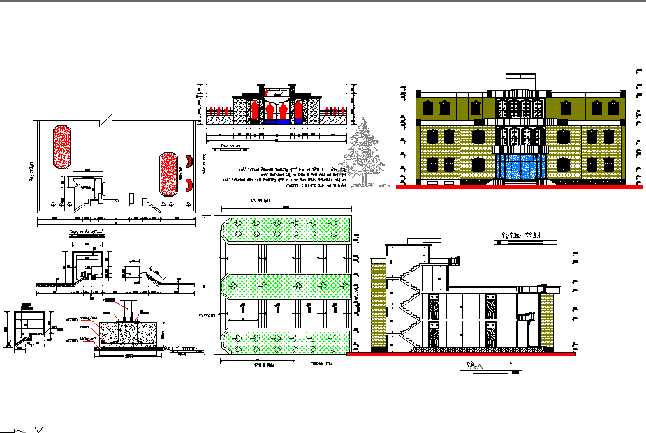
Elevation and section detail dwg file
Home
Categories
Architecture
University
Elevation and section detail dwg file
Uploaded by:
Dhara
View Profile
View Profile
Description
Elevation and section detail dwg file, Elevation and section detail with naming detail, dimension detail, column and beam detail, etc.
File Type:
DWG
File Size:
5.5 MB
Category::
Architecture
Sub Category::
University
type:
Gold
Uploaded by:
Dhara
View Profile
Download
Add to libary
find Latest
Related
Files