LOGIN
HOME
CATEGORIES
UPLOAD FILE
PRICING
HOUSE PLAN
ABOUT US
CONTACT US
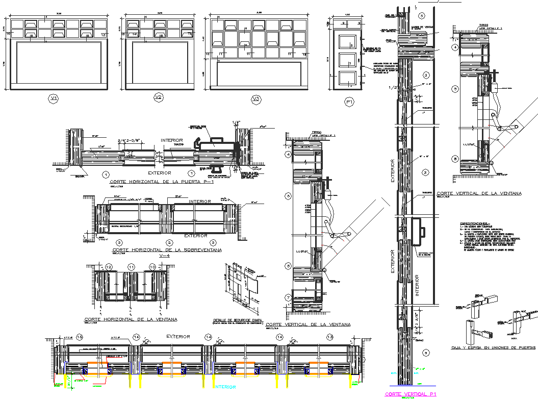
Wall section detail dwg file
Home
Categories
Details
Construction Details
Wall section detail dwg file
Uploaded by:
Dhara
View Profile
View Profile
Description
Wall section detail dwg file, Wall section detail with dimension detail, naming detail, reinforcement detail, center line detail with numbering detail, etc.
File Type:
DWG
File Size:
5.3 MB
Category::
Details
Sub Category::
Construction Details
type:
Gold
Uploaded by:
Dhara
View Profile
Download
Add to libary
find Latest
Related
Files