Working building plan, elevation and section detail dwg file
Description
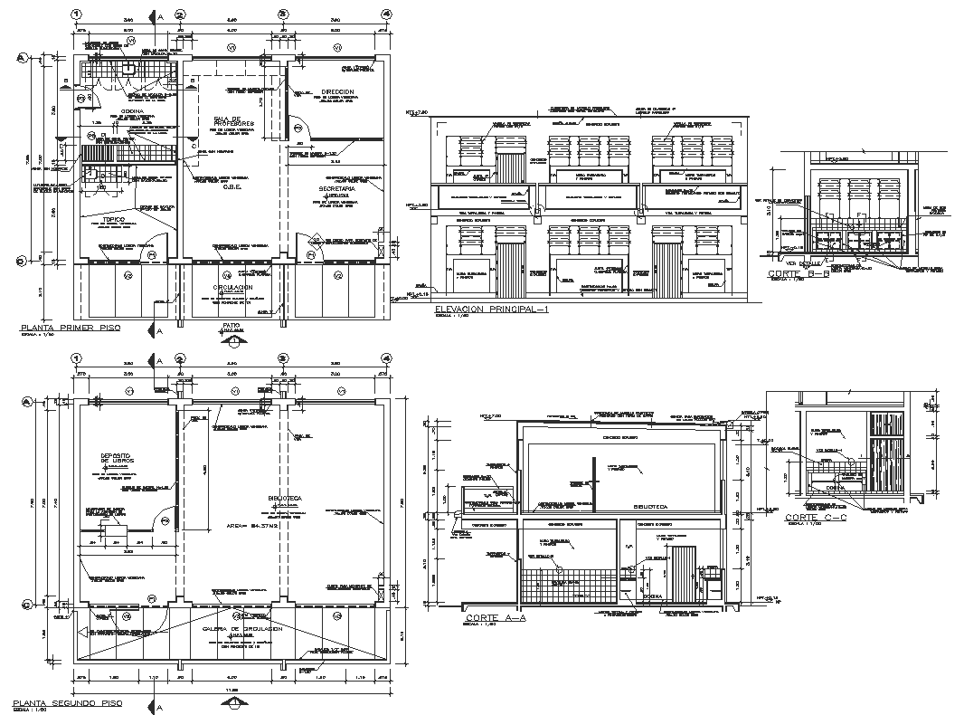
Working building plan, elevation and section detail dwg file, Working building plan, elevation and section detail with dimension detail, naming detail, front elevation and back elevation detail, section detail, etc.
Uploaded by:

