LOGIN
HOME
CATEGORIES
UPLOAD FILE
PRICING
HOUSE PLAN
ABOUT US
CONTACT US
Layout plan detail dwg file
Home
Categories
Architecture
Corporate Building
Layout plan detail dwg file
Uploaded by:
Dhara
View Profile
View Profile
Description
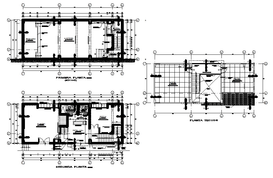
Layout plan detail dwg file, Layout plan detail with working plan detail, dimension detail, naming detail, stair detail, furniture detail with chair, table, etc.
File Type:
DWG
File Size:
1.2 MB
Category::
Architecture
Sub Category::
Corporate Building
type:
Free
Uploaded by:
Dhara
View Profile
Download
Add to libary
find Latest
Related
Files