Bungalow Plan, elevation and section detail dwg file
Description
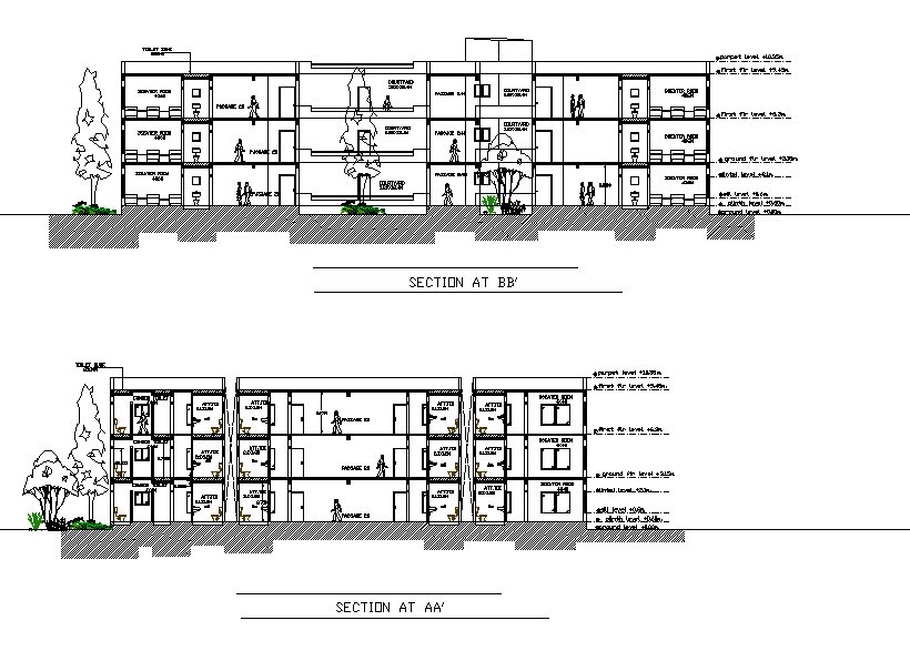
Bungalow Plan, elevation and section detail dwg file, Plan, elevation and section detail with naming detail, section line detail, roof elevation detail, front elevation detail, side elevation, section A-A’ detail, section B-B’ detail, window, door, reeling detail, etc.
Uploaded by:
