Urban school detailed structural layout plan dwg file
Description
Urban school detailed structural layout plan dwg file.
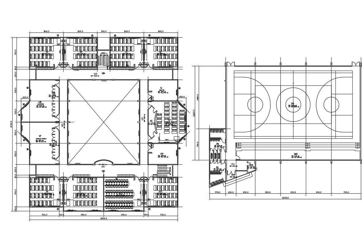
Urban school detailed structural layout plan that includes a detailed view of sports ground pitch, play area, sanitary installation of sports ground, main entry gate, classrooms, conference hall, meeting room, head office, toilets for staff, toilets for students, lobby, passage, canteen, kitchen, staircase, computer lab, library, cultural hall view and much more of school details.
Uploaded by:

