Foundation to Roof section and plan working plan detail dwg file
Description
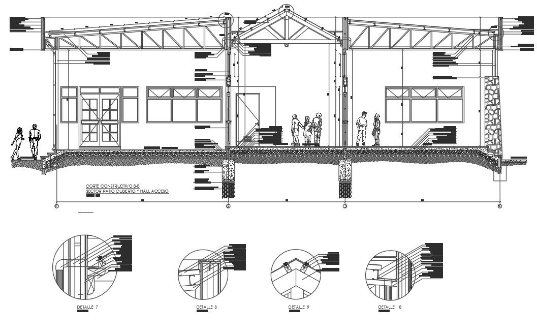
Foundation to Roof section and plan working plan detail dwg file, Foundation to Roof section and plan working plan detail with dimension detail, naming detail, structural detail, furniture detail with door and window, etc.
Uploaded by:

