Plumbing sanitary plan and elevation detail dwg file
Description
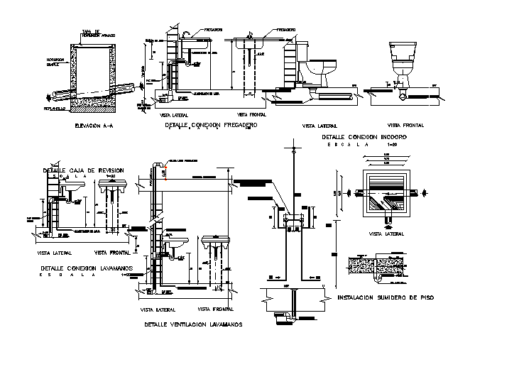
Plumbing sanitary plan and elevation detail dwg file, Plumbing sanitary plan and elevation detail with dimension detail, naming detail, water closed detail, sink detail, p-trap detail, etc.
File Type:
DWG
File Size:
8.5 MB
Category::
Interior Design
Sub Category::
Architectural Bathrooms And Interiors
type:
Gold
Uploaded by:

