Foundation plan and construction plan detail dwg file
Description
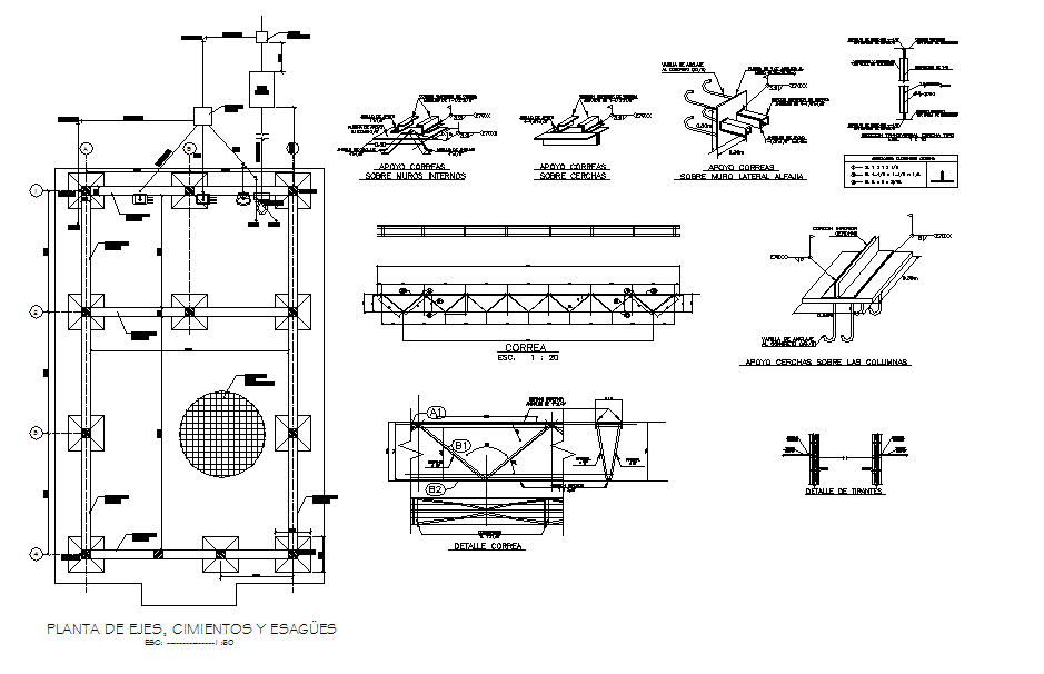
Foundation plan and construction plan detail dwg file, Foundation plan and construction plan detail with dimension detail, naming detail, reinforcement detail, wall section detail, bolt nut detail, etc.
Uploaded by:

