Foundation plan and section center line plan detail dwg file
Description
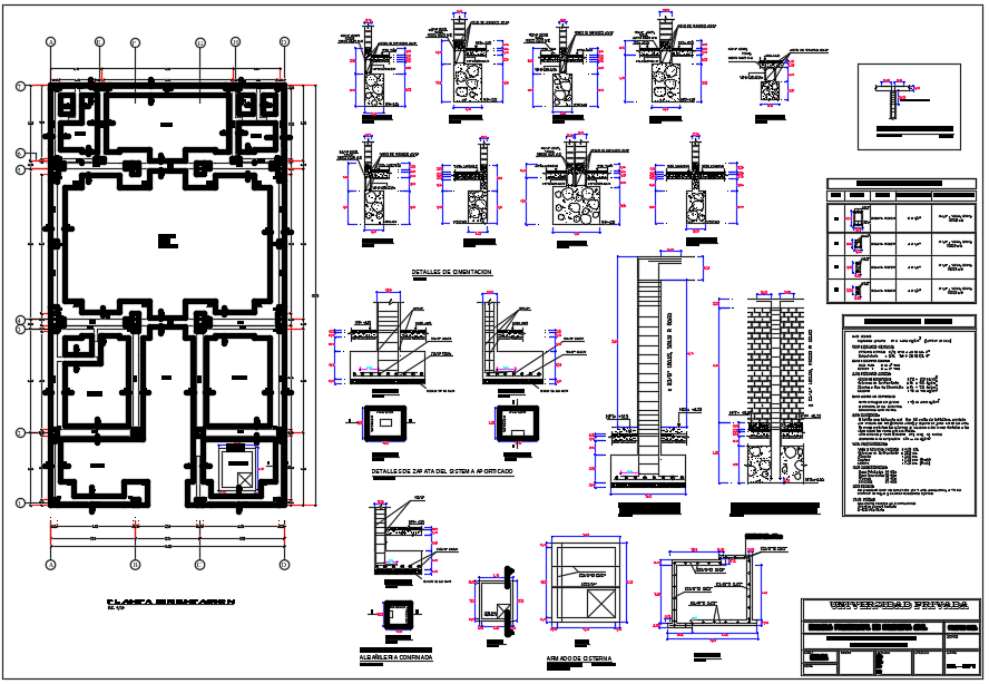
Foundation plan and section center line plan detail dwg file, Foundation plan and section center line plan detail with dimension detail, naming detail, reinforcement detail, column section detail, round shape column detail, etc.
Uploaded by:
