Electric commercial layout with details in DWG file
Description
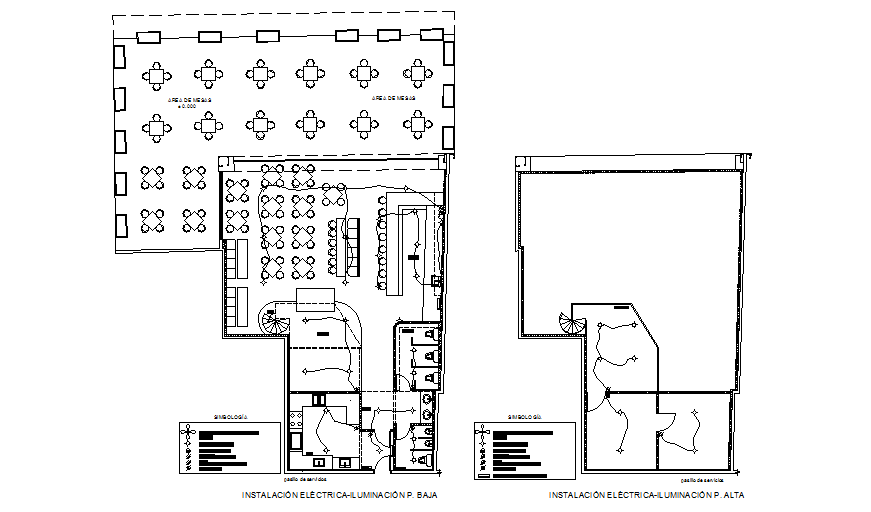
Electric commercial plan detail dwg file, Electric commercial plan detail with furniture with chair, table detail, naming detail, stair detail, etc.
File Type:
3d max
File Size:
815 KB
Category::
Electrical
Sub Category::
Architecture Electrical Plans
type:
Gold
Uploaded by:

