Plan, elevation and section working plan detail dwg file
Description
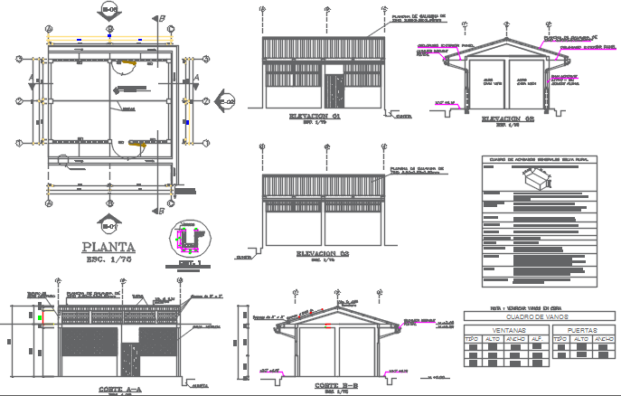
Plan, elevation and section working plan detail dwg file, including roof section detail, center line plan detail with numbering detail, table detail, front elevation detail, left elevation detail, back elevation detail, section A-A’ detail, section B-B’ detail, etc.
Uploaded by:

