Plan, elevation and section working plan detail dwg file
Description
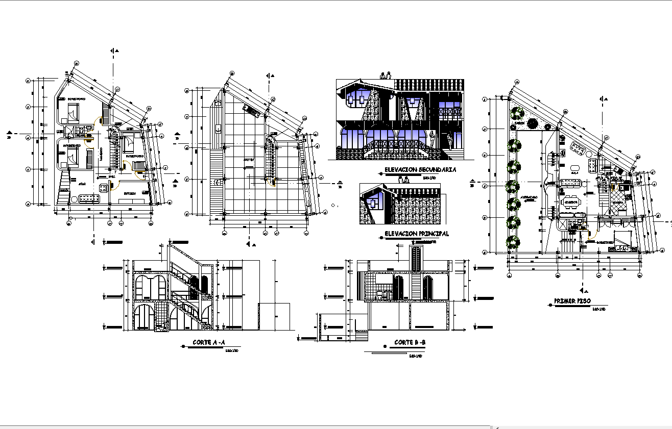
Plan, elevation and section working plan detail dwg file, with dimension detail, naming detail, bungalow plan detail, furniture detail in chair, table, sofa, bed, door and window detail, stair detail, toilet detail with water closed detail, sink detail, etc.
Uploaded by:

