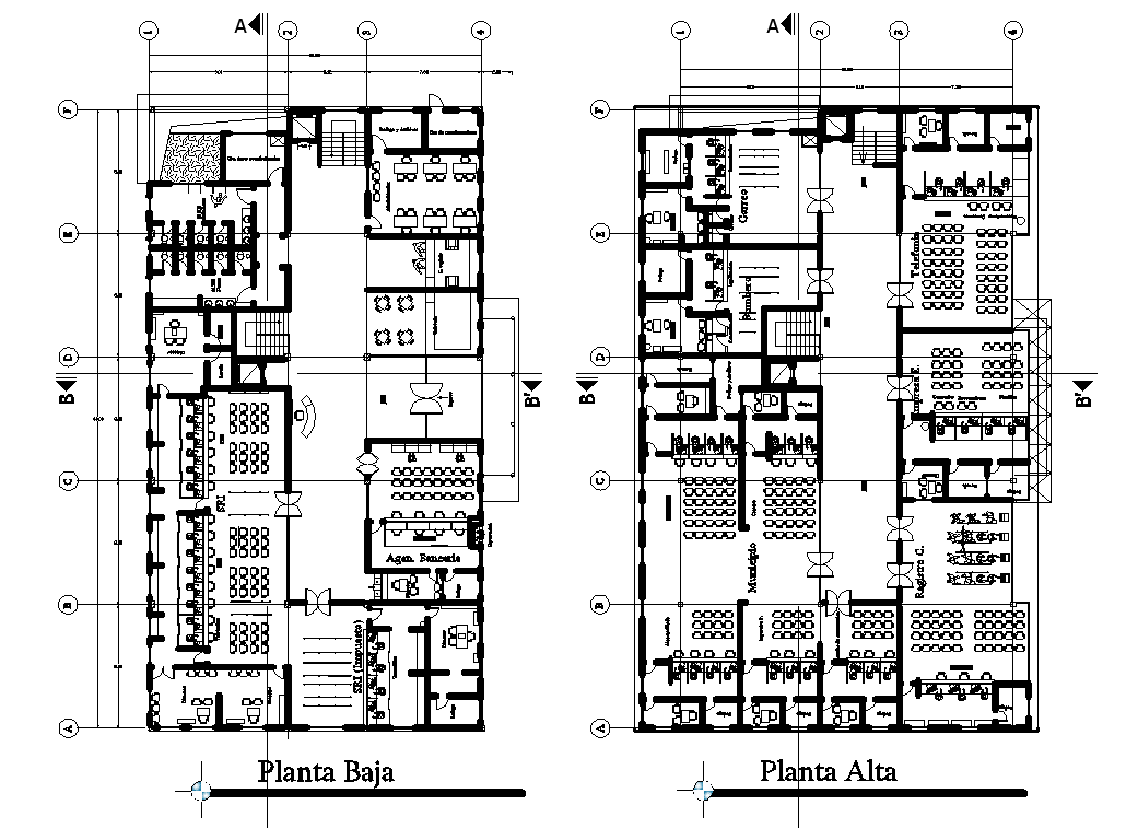
Ground floor plan and first floor plan detail dwg file
Description
Ground floor plan and first floor plan detail dwg file, with furniture detail in chair, door, window and table detail, stair detail, section line detail, toilet detail with plumbing sanitary in water closed detail and sink detail, etc.
Uploaded by:

