Plan and section working plan detail dwg file
Description
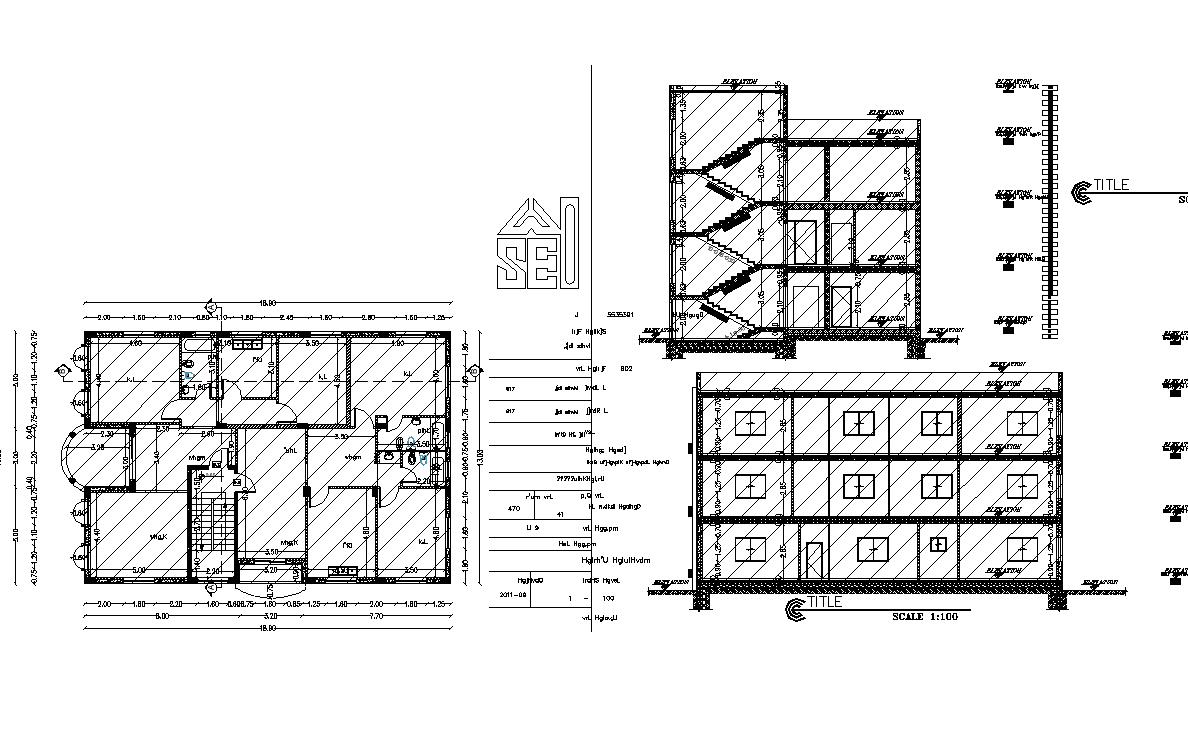
Plan and section working plan detail dwg file, including dimension detail, naming detail, scale 1:100 detail, stair cutting detail, furniture detail with door and window detail, toilet detail with plumbing sanitary detail in water closed detail, sink detail, etc.
Uploaded by:

