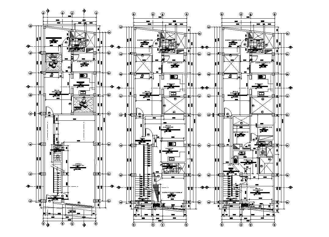
Flat plan detail dwg file

Flat plan detail dwg file
Profile

Uploaded by:

Dhara

Description
Flat plan detail dwg file, with shaft detail, stair detail, dimension detail, naming detail, section line detail, furniture detail with chair and table detail, window numbering detail, etc.
Profile

Uploaded by:

Dhara

find Latest

Related Files

WhatsApp Chat